分享

旧房改造需要考虑的4个问题

由于旧房使用年限较长,屋况或多或少的都会存在一些问题,容易埋下安全隐患,因此在改造的时候一定要打起十二分的精神,谨慎对待每一个细节。
2018-06-06

由于旧房使用年限较长,屋况或多或少的都会存在一些问题,容易埋下安全隐患,因此在改造的时候一定要打起十二分的精神,谨慎对待每一个细节。以下文章简单介绍一下什么样的房子适宜改造,以及改造时需要注意的问题。

 

适合改造的房屋

 

1. 主体结构完整的房子相对于漏水房、霉斑房或者隐形漏水房(比如,平顶,窄顶或内阳台)更适宜改造。

 

 

主体结构有缺陷的房屋,在没有拆除外墙的情况下,施工方无法估计出房屋的损坏程度,只能根据图纸报价,所以前期报价与实际施工费用会有出入。

 

另外,Council和工程师在检查的时候也有可能会要求整体拆除外墙,检查并更换损坏的木头。因此,您在对施工方面的费用成本和时间成本都存在着非常高的风险。

 

2. 布局朝向好的房屋具有相对良好的改造基础。首先从外部空间来看,房子的所占位置要与地的边界保持一定距离;整体朝向好;地下管道的位置合适,比如距离和深度。

 

 

其次从房屋的内部空间来考虑,充裕的内部空间有助于设计师规划不同的功能区域,使动线更合理、居住更舒适,也能更好的加强室内外的交流互动。最后,水点的位置也是需要花些心思考虑的。以下图为例:

 

 

红框中原本是洗衣房的位置,和其中一间房仅一墙之隔,设计师考虑到屋主的需求,将洗衣房和相连的Dining room改造成一间主人套房。这样客厅的区域也可以重新规划,是居住空间更合理,满足屋主的居住需求。

 

改造时需要注意的问题

 

1. 明确改造目的,比如家庭人口的构成,家庭成员对房屋的功能性需求,预算,以及是否准备长期持有房产或准备出售,等等。这些问题需要提前与设计师沟通,一边设计师帮您考量改造的规模。 

 

 

2. 扩展方向,承重结构及防风结构,在改造设计前,建议您提前约工程师和设计师到现场查看承重结构,以避免设计时对承重结构做出太大调整。 如果是防风结构墙,可能需要工程师重新计算,并在外墙添加新的结构。

 

 

3. 动线的重新规划,光线铺陈调整

 

延续上一个案例,经过设计师重新规划以后,室内的区域划分更加明确,同时减少了室内门的数量,使动线更加流畅。

 

 

上图为改造前房间分布。

 

下图为设计师重新规划后的房间分布:

 

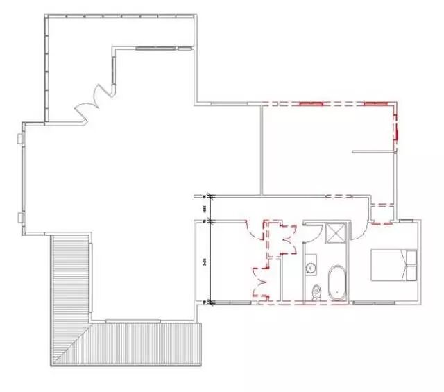
4. 新旧结构衔接

 

在设计加建房的时候,设计师会考量新房和旧房衔接部分的设计,将其最小化,以减少旧房的拆除面积 (如下图红色边线)。

 

 

重新规划后的加建设计图:

 

 

或者,您如果不想完全翻新屋顶,可以考虑利用层高差,错层加建。 这样可以有效的帮您控制工程量、节省改造费用。

 

另外,我们还可以通过合理利用房屋内已有的水点,减少门窗更换数量,来控制改造费用。  

 

最后,在改造设计过程中,现场测量是非常关键的一步。对于老旧房屋,Council提供的信息不一定准确,在设计施工图时会造成误差,以至于影响后期的施工进程,所以更加精确的实地测量是设计师画图的关键。

更多阅读