
探索当代城市生活的真正意义,重新定义极致奢华。这横卧于山顶的600㎡华美府邸出自世界级建筑设计工作室——Fearon Hay。Fearon Hay充分利用了这块1,138㎡的高地,为屋主打造270°无遮挡落地窗景,同时选用了斜板混凝土、彩钢面板和其他顶级进口建材来构建这栋采光充沛的奢华天堂。

当您进入这扇玻璃入户门时,迎面而来的是和煦的自然光;映入眼帘的是精心设计的的石质禅意花园;沁入心田的是草木成茵的自然气息。




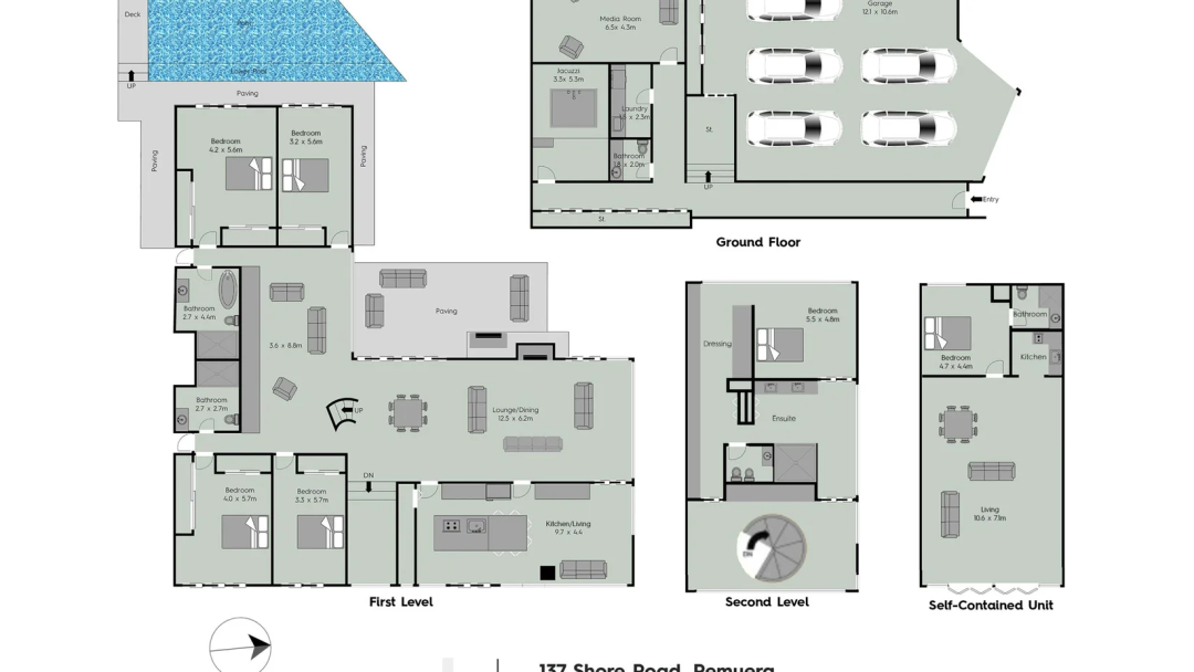
接着,在结束一天的忙碌后潜进私人电影院,这里能将市井喧嚣隔绝在外,或者您可以转向室内水疗中心放松身心,感受身体细胞得到复苏的舒适感。





宽阔的楼梯通向主起居层,这是一个室内外空间浑然一体的起居层,室外露台与宽敞的草坪无缝衔接,壁炉内的火光温暖着整个空间,是接待客人和与孩子们玩闹的完美场所。在室内,现代化的厨房面对着宁静的翠绿风景,背朝时尚的玻璃橱柜,在夜晚有了灯光的点缀会更加动人。同时,家庭电视室可以适应您不断变化的需求,既适合温馨的夜晚,又适合多功能的工作和娱乐。


二层有2间浴室和4间卧室,其中2间享有绿树美景,另外2间则可以透过全高滑动玻璃门俯瞰无边泳池。然后,沿着宽大的白色旋转楼梯来到顶楼主卧,这里将这个区域的城景尽收眼底,主卧内还设有一个私人休息室、巨大的步入式衣柜和浴室。全年都可以享受中央供暖、空调和地暖带来的舒适。





回到一楼,您将发现弯曲的前墙内隐藏着可滑动的隔板,显现出一个可容纳5辆汽车的车库,并附带充足的储藏空间。此外,还有一个独立的70㎡的独立单元,目前已出租,非常适合作为祖母套房、保姆住所或家庭办公室。

该住宅位于 St Kentigerns 对面,距离Kings School仅几分钟路程,附近还有顶级的私立和公立学校,位于“双文法”学区。毗邻高速公路,距离Parnell和Remuera购物区、Orakei水池步道、附近的Bays Beaches和Benson Rd商店也非常便利。不要错过这栋建筑中的艺术精品,您的梦想之家就在这里。


